Государственным предприятием "УКС Речицкого района" осуществляется продажа путём проведения аукционов встроенных помещений коммерческого назначения на 1 этаже нового дома в г. Речице, ул. Ленина, д. 58.
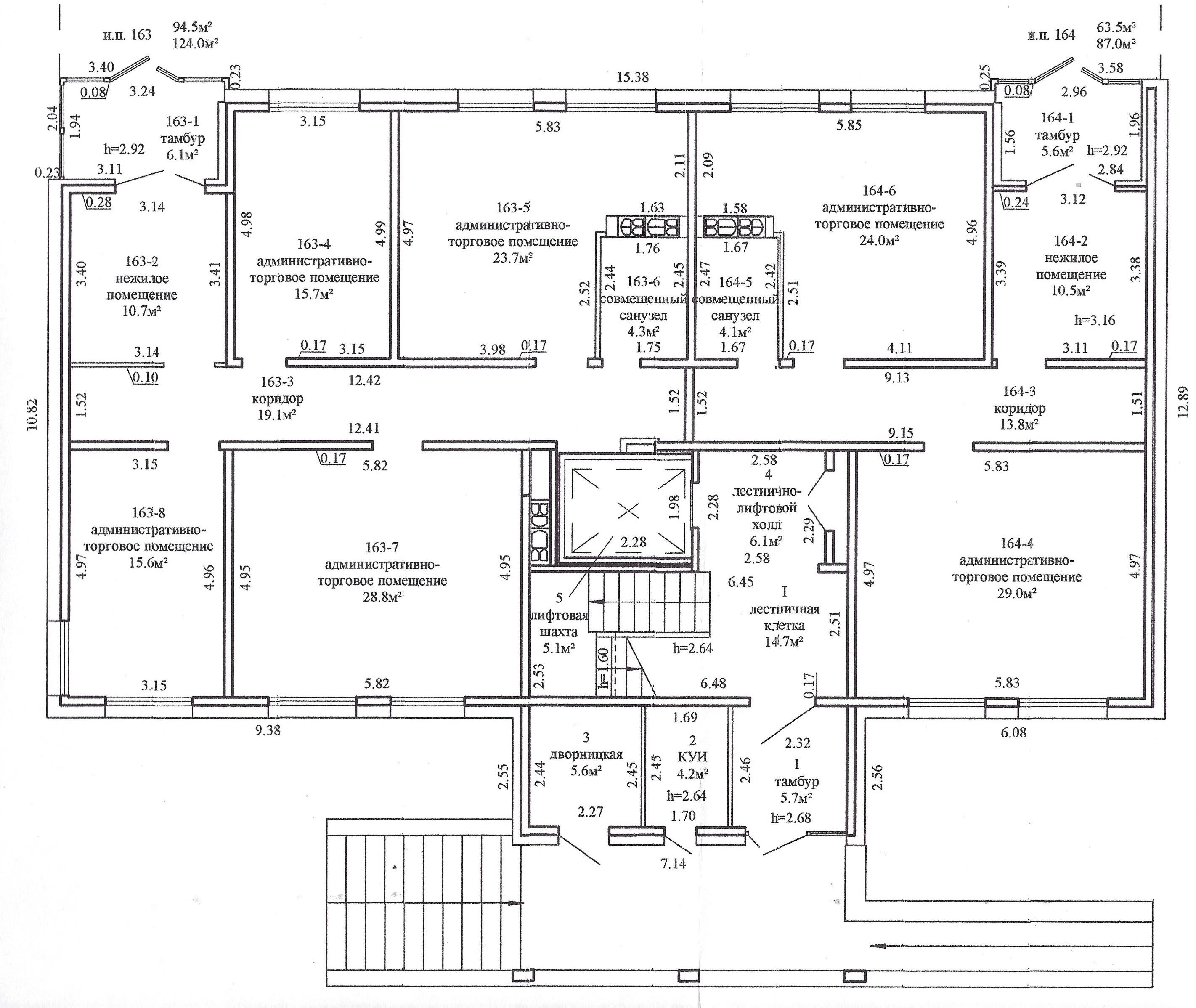
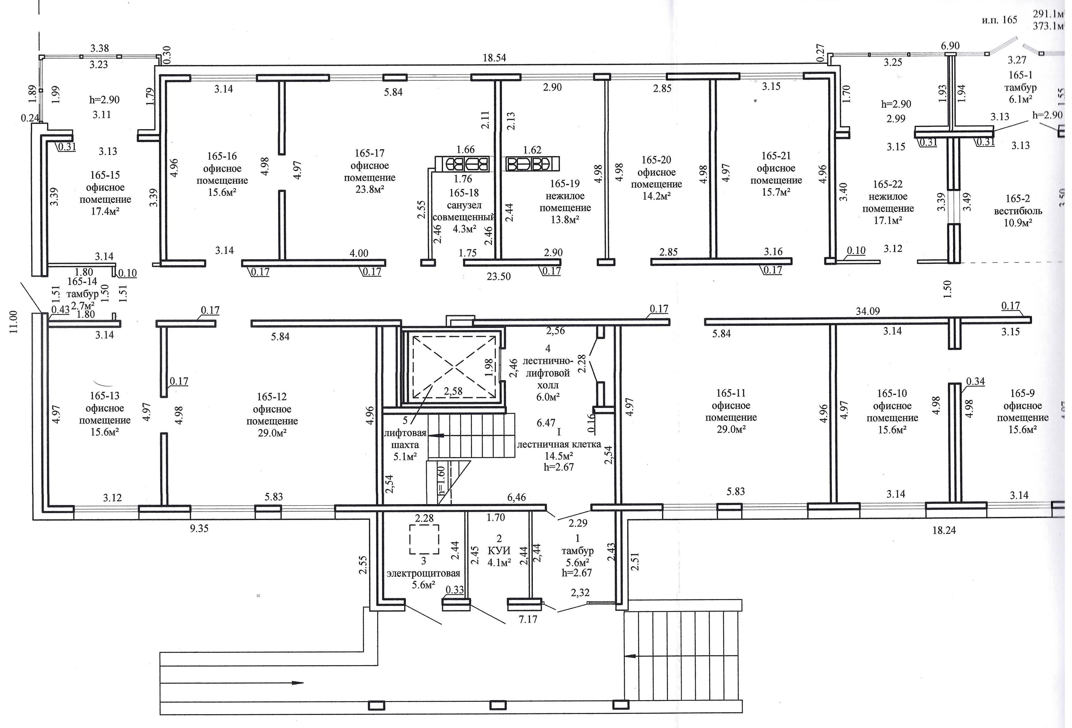
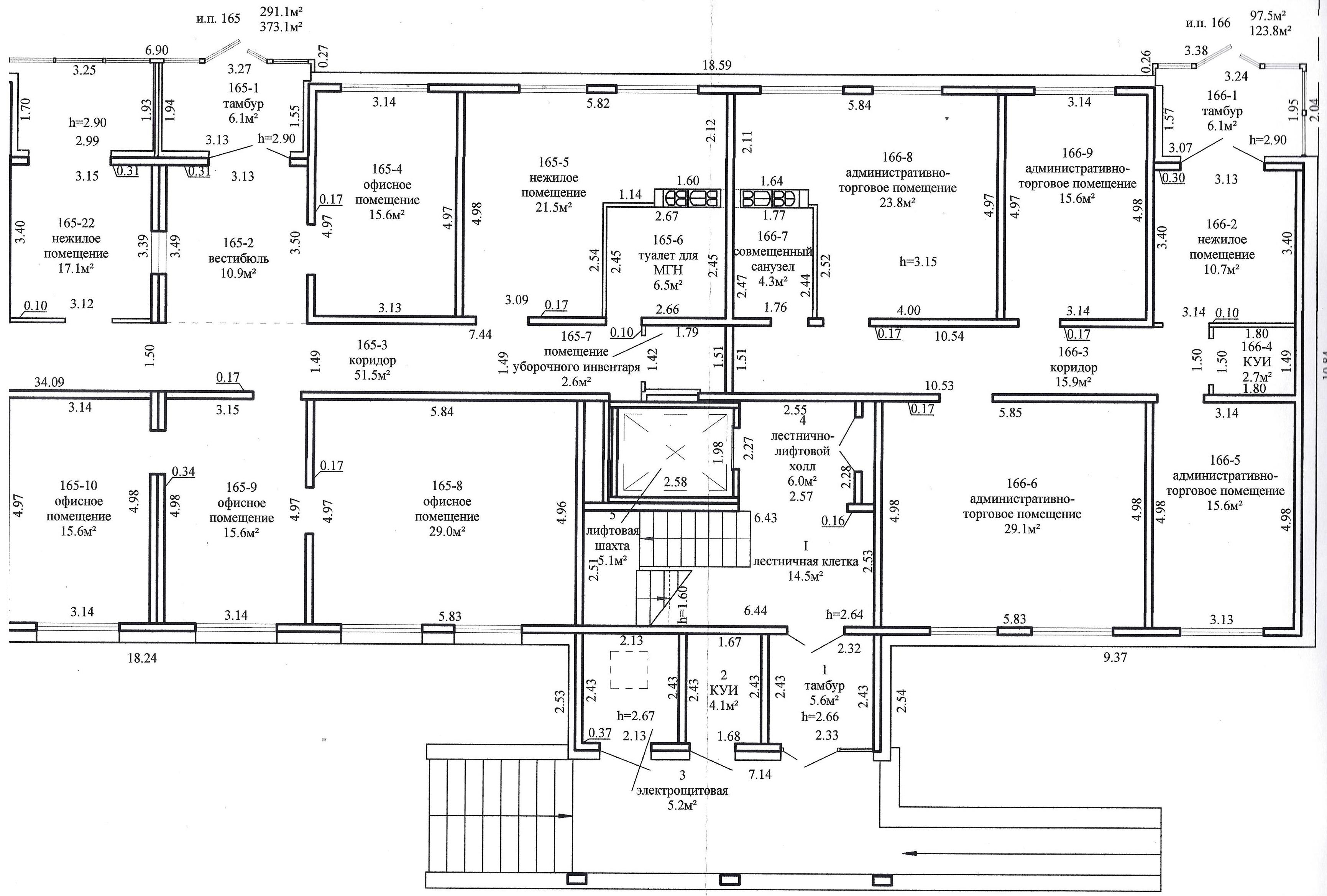
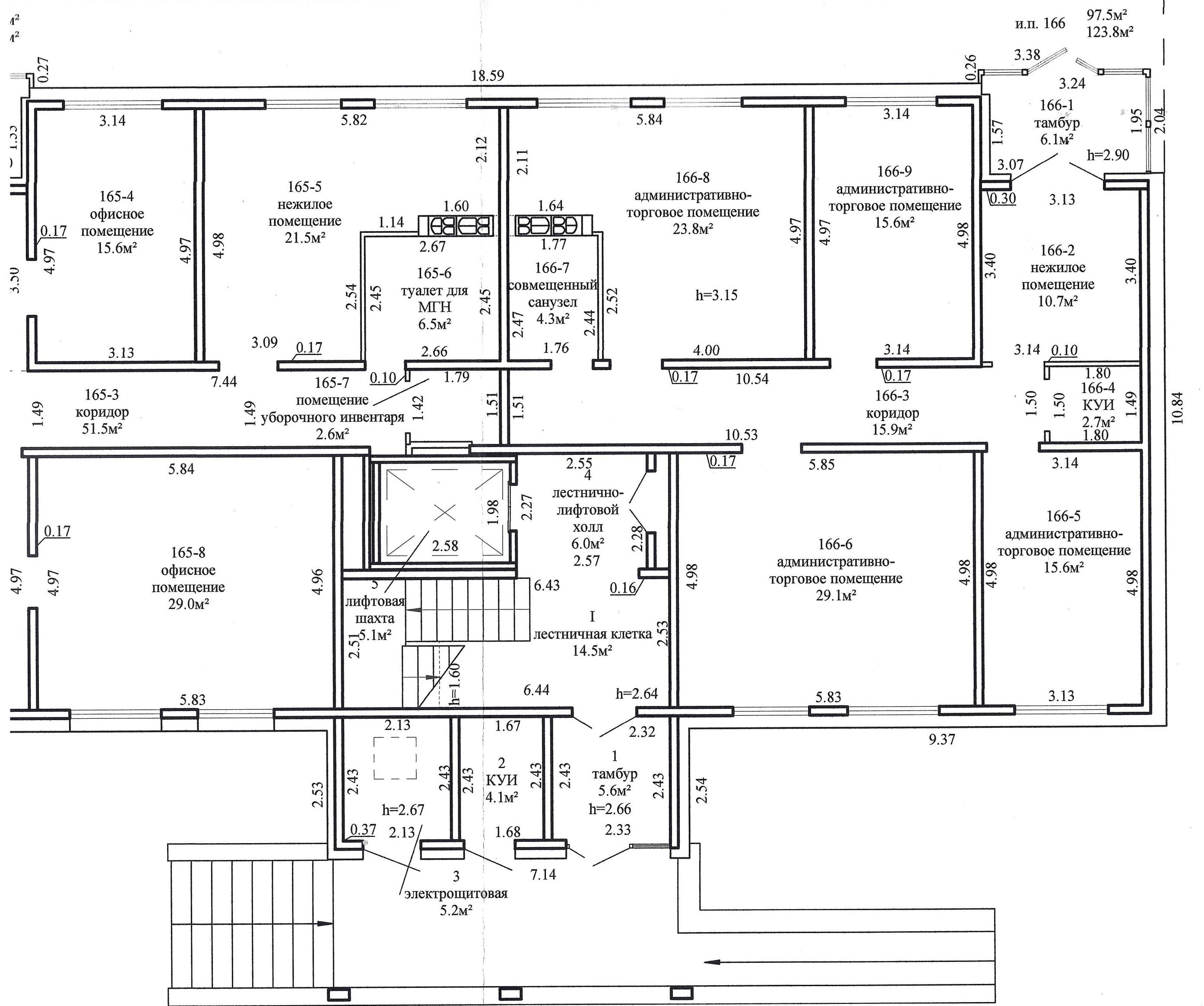
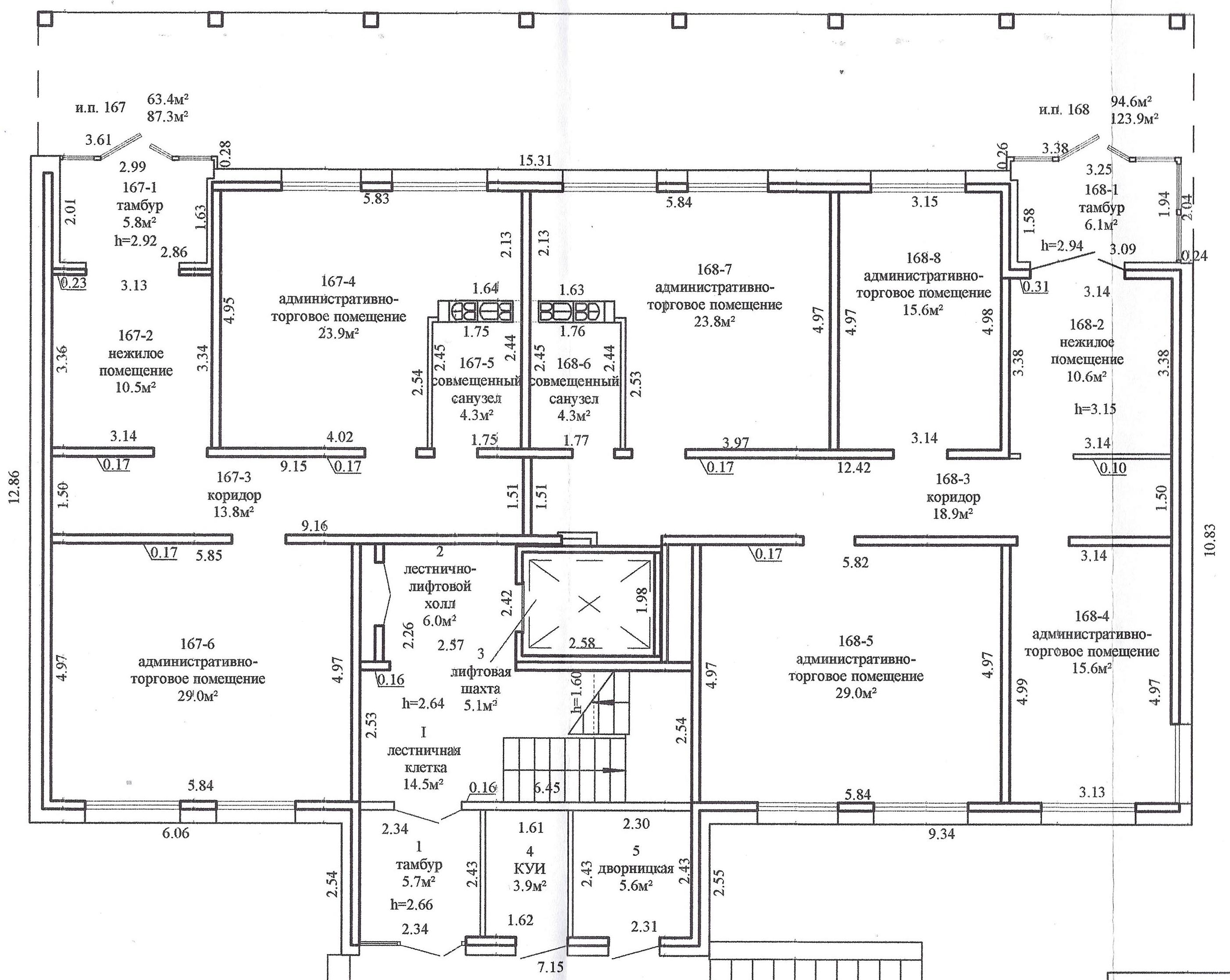
Дом расположен в историко-административном центре города возле центральной площади, банков, райисполкома. Встроенные помещения могут использоваться для размещения любых организаций и ведения бизнеса - офис, салон, ателье, торговля и т.д. Они разделены на 6 отдельных блоков различной площади и планировки. Каждый блок имеет отдельный вход с оживлённой улицы Ленина, тамбур, внутренний коридор, административно-торговые помещения, санузел.
Помещения без отделки. Отделка и установка необходимого оборудования производится покупателем самостоятельно после покупки.
По согласованию сторон при покупке помещения возможна рассрочка оплаты до 1 года.
Ниже представлены планировки.
Блок общей площадью 124 кв.м. расположен в левой части первого подъезда. Блок общей площадью 87 кв.м. расположен в правой части первого подъезда.

Блок общей площадью 373,1 кв.м. занимает весь 1 этаж второго подъезда и левую половину первого этажа третьего подъезда.


Блок общей площадью 123,8 кв.м. расположен в правой части третьего подъезда.

Блок общей площадью 87,3 кв.м. расположен в левой части четвёртого подъезда. Блок общей площадью 123,9 кв.м. расположен в правой части четвёртого подъезда.

Получить более подробную информацию можно по телефонам: сот. +375293933056; +375293934129, гор. +37502340 3-62-97.








